Acum este Vin Apr 24, 2026 11:38 pm

forum.cursuridecalificareacreditate.ro

Forum Tehnic : Frigotehnisti ,Instalatori ,Electricieni si Sisteme Fotovoltaice

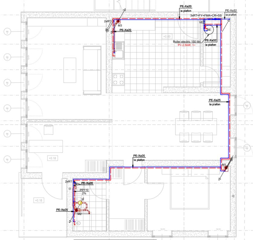
Schema distributie ARM SI ACM , ESTE INCLUS SI BOILERUL

Aici cursanti pot expune ce nelamuri sau intrebari au legate de cursul de Instalatii :Maistru instalator,Tehnician instalator ,instalator
Avatar utilizator
 
Mesaje: 23
Membru din: Lun Apr 22, 2019 6:01 pm
Localitate: Voluntari

Schema distributie ARM SI ACM , ESTE INCLUS SI BOILERUL

Mesaj de Avramescu Mihai » Lun Apr 22, 2019 6:12 pm

Schema distributie ARM SI ACM , ESTE INCLUS SI BOILERUL
SUNT 2 BOILERE CU PUTERI DIFERITE SE VAD COLOANELE
Fişiere ataşate
DISTRIBUTIE SI COLOANE ACM SI ARM SUNT SI 2 BOILERE PREPARARE APA CALDA.JPG
DISTRIBUTIE SI COLOANE ACM SI ARM SUNT SI 2 BOILERE PREPARARE APA CALDA
DISTRIBUTIE SI COLOANE ACM SI ARM SUNT SI 2 BOILERE PREPARARE APA CALDA.JPG (75.84 KiB) Vizualizat de 6759 ori

 
Mesaje: 1
Membru din: Lun Apr 29, 2019 12:11 am
Localitate: Popesti

Re: Schema distributie ARM SI ACM , ESTE INCLUS SI BOILERUL

Mesaj de ColteVictor » Lun Apr 29, 2019 12:12 am

Avramescu Mihai scrie:Schema distributie ARM SI ACM , ESTE INCLUS SI BOILERUL
SUNT 2 BOILERE CU PUTERI DIFERITE SE VAD COLOANELE


O sa salvez planul sa il studiez

Avatar utilizator
 
Mesaje: 29
Membru din: Mar Aug 06, 2019 11:54 am
Localitate: Tunari

Re: Schema distributie ARM SI ACM , ESTE INCLUS SI BOILERUL

Mesaj de Martac.Paul » Mar Aug 06, 2019 1:02 pm

foarte bune schemele postate , invata instalatorul ce face o schema de instalatii si cum o citeste

Avatar utilizator
 
Mesaje: 113
Membru din: Mie Sep 25, 2019 2:25 pm
Localitate: Bucuresti sect 1

Re: Schema distributie ARM SI ACM , ESTE INCLUS SI BOILERUL

Mesaj de MitreaNicolae » Mie Sep 25, 2019 3:19 pm

Martac.Paul scrie:foarte bune schemele postate , invata instalatorul ce face o schema de instalatii si cum o citeste

daca nu are cine te invata sa citesti schema coloanelor esti praf ca instalator


Înapoi la Intrebari, Nelamuriri, Sugestii legate de cursurile de Instalator

Cine este conectat

Utilizatorii ce navighează pe acest forum: Niciun utilizator înregistrat şi 5 vizitatori